Skip to primary navigation
Skip to main content
Go to www.utc.edu
Design for Independence
Show Search
ApplyNow
Adaptive Equipment
Toilet Stool
Toilet Stool Drawings
Folding Walker
Folding Walker Photos
Folding Walker Drawings
Balance Devices
Super 8 Balance Beam
Super 8 Balance Beam Drawings
Wobble Board
Wobble Board Build Instructions
Balance Beam
Balance Beam Build Instructions
Balance Beam Drawing
Play Stations
Playground
Playground Photos
Playground Drawings
Sensory Devices
Therapy Steam Roller
Therapy Steam Roller Photos
Therapy Steam Roller Drawings
Wheelchair Trays
Learning Assistants
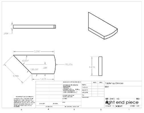
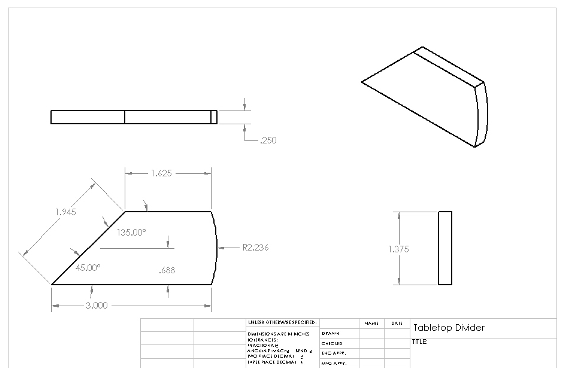
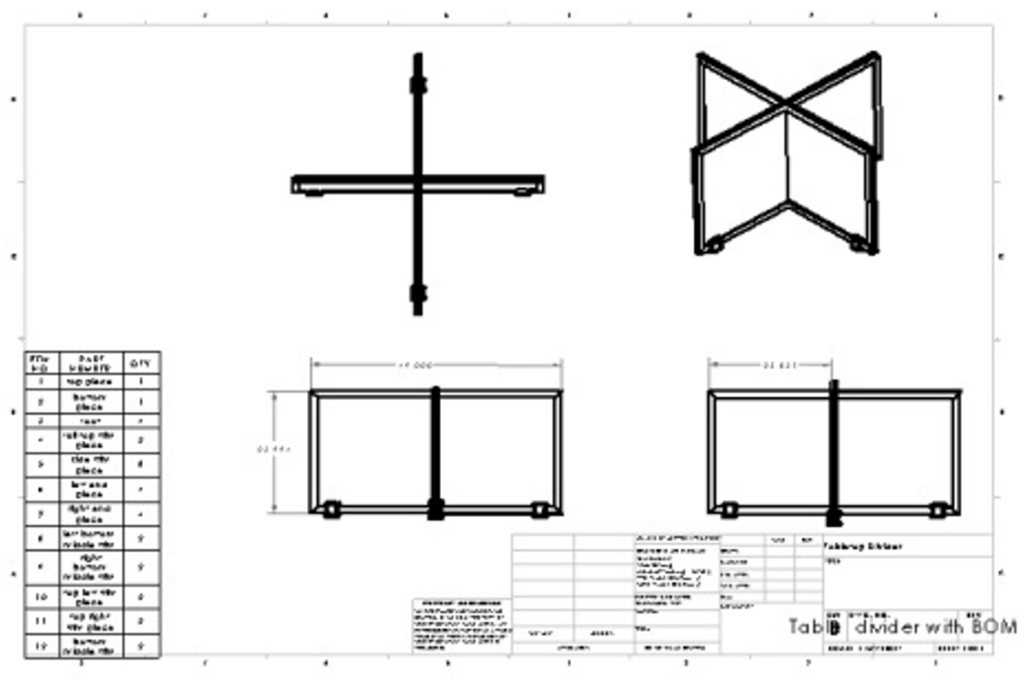
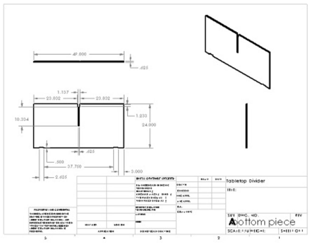
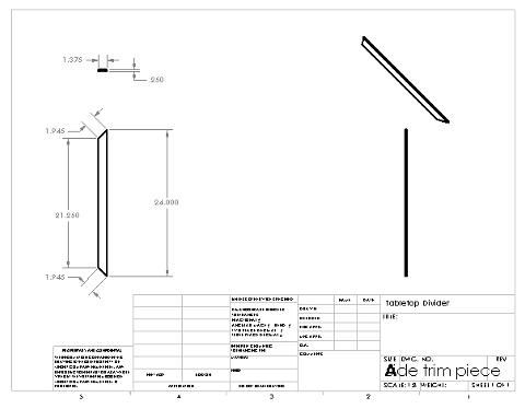
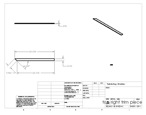
Chalkboard Tabletop Divider
Tabletop Divider Build Instructions
Tabletop Divider Drawings
Whiteboard Wall
Whiteboard Wall Build Instructions
Whiteboard Wall Drawings
Whiteboard Wall Photos
Request Project
Questions?
I am…
…a student.
…a veteran.
…an alum.
…a parent.
…faculty or staff.
Quick Links
Calendar
Campus News
Canvas
Change Password
Class Schedule
Crisis Resources
Library
Mocs Mail+
MocsSync
MyMocsNet
O365
Visit Us
Request Info
Search this website
Hide Search
Tabletop Divider Drawings
Home
»
Learning Assistants
»
Chalkboard Tabletop Divider
»
Tabletop Divider Drawings